Anna Paulowna – Molenvaart 183

Verkocht onder voorbehoud

Molenvaart 183

1761 AD, Anna Paulowna

126 m2
550 m2
3
€ 475.000,- k.k.
Energielabel:
C

Omschrijving

Prachtige (levensloopbestendige) vrijstaande woning op centrale locatie!

Op een A-locatie aan 'de krakeling', midden in het dorp van Anna Paulowna, vindt u deze vrijstaande woning. Het beschikt over drie slaapkamers en een vrijstaande garage. Deze karakteristieke woning uit 1979 heeft een prettige en praktische indeling, door de ruime woonkeuken, bijkeuken en slaapkamer met badkamer en-suite op de begane grond. Ideaal als u op zoek bent naar een levensloopbestendige woning bijvoorbeeld, maar ook is de woning geschikt als gezinswoning door de twee slaapkamers op de eerste verdieping. Hoewel de inrichting wat verouderd is, geeft dit juist de kans om de woning geheel naar eigen smaak te moderniseren.

Het royale perceel van 550 m² biedt een heerlijke tuin rondom, met een prachtig uitzicht op de bollenvelden aan de voorzijde van de woning. Aan de achterzijde heeft u een diepe achtertuin (circa 30 meter) met voldoende privacy en volop mogelijkheden voor tuinliefhebbers. Een groot pluspunt is de ruime garage van circa 32 m² met overheaddeur. Ideaal voor uw hobby, een werkplaats of opslag. Het is mogelijk om op eigen terrein meerdere auto's te parkeren.

Een woning met potentie, ruimte en een uitstekende ligging! Maakt u snel een afspraak voor een bezichtiging?

Indeling:
Begane grond
Entree, hal, meterkast, toilet en fonteintje, trapopgang naar eerste verdieping. Woonkamer aan de voorzijde van de woning, open haard en schuifpui. Half open keuken met koelkast, 4-pits gaskookplaat, afzuigkap en oven en toegang naar bijkeuken. Bijkeuken met aansluitingen (2x) voor wasmachine en/of vaatwasser, vaste kast en toegang tot de achtertuin. Via de hal heeft u tevens toegang tot de slaapkamer en de badkamer met douche en wastafel.

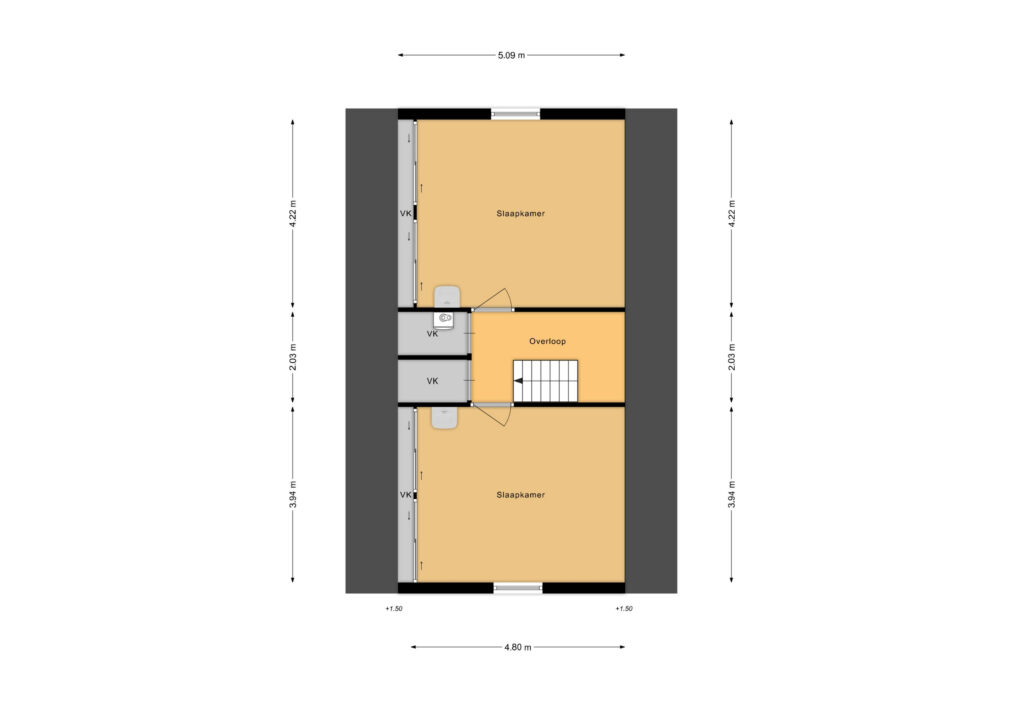
Eerste verdieping
Vaste trap naar de overloop met toegang tot twee slaapkamers met beide een wastafel, vaste kast en opslagruimte achter knieschotten.

Tuin
Fraai aangelegde achtertuin van circa 30 meter diep en een garage/schuur van circa 32 m² met overheaddeur.

Bijzonderheden:
- Bouwjaar 1979
- Bouwjaar CV-ketel 2022, Remeha Tzerra HR
- Semi-bungalow met slaapkamer en badkamer beneden
- Centraal gelegen, voorzieningen op loopafstand
- Twee ruime slaapkamers op de eerste verdieping
- Royale garage van 32 m² met overheaddeur
- Groot perceel van 550 m²

Toon volledige omschrijving

Kenmerken

Overdracht
Vraagprijs
€ 475.000,-
Vraagprijs per m²
€ 3.770,-
Aangeboden sinds
27 november 2025
Status
Verkocht onder voorbehoud
Aanvaarding
In overleg
Bouw
Soort object
Woonhuis
Soort woning
Eengezinswoning
Type woning
Vrijstaande woning
Bouwjaar
1979
Bouwvorm
Bestaande bouw
Soort dak
Zadeldak
Oppervlakte en inhoud
Woonoppervlakte
126 m2
Perceel oppervlakte
550 m2
Inhoud
451 m3
Indeling
Aantal kamers
4
Aantal badkamers
1
Aantal slaapkamers
3
Voorzieningen
TV kabel, Schuifpui, Natuurlijke ventilatie
Energie
Energielabel
C
Isolatie
Dubbelglas
Verwarming
CV ketel
Warmwater
CV ketel
C.V.-Ketel
Remehe Trezza (Gas, Eigendom)
Bouwjaar C.V.-Ketel
2022
Combiketel
Ja
Buitenruimte
Tuin
Achtertuin, Voortuin
Hoofdtuin
Achtertuin
Hoofdtuin oppervlakte
315 m2
Positie
Zuidwest
Achterom
Nee
Kwaliteit
Normaal
Parkeergelegenheid
Garage
Aangebouwd hout
Parkeer faciliteiten
Op eigen terrein
Parkeeroppervlakte
32 m2
Parkeercapaciteit
3
Overig
Permanente bewoning
Ja
Onderhoud binnen
Goed
Onderhoud buiten
Goed
Huidig gebruik
Woonruimte
Huidige bestemming
Woonruimte
Bekijk alle specificaties

Plattegronden

Virtuele tour

Wat is er in de buurt?

    Weten wat uw woning waard is?