Anna Paulowna – Molenvaart 28

Molenvaart 28

1761 AJ, Anna Paulowna

154 m2
865 m2
4
€ 600.000,- k.k.
Energielabel:
B

Omschrijving

Vrijstaand wonen met ruimte, comfort én het centrum op loopafstand. Deze verrassend royale woning combineert het allemaal!

Aan de rustige zijde van de Molenvaart staat deze karaktervolle, maar volledig gemoderniseerde vrijstaande woning op een royaal perceel van maar liefst 865 m². Hier geniet u van rust en privacy in uw eigen diepe achtertuin, terwijl u slechts de straat hoeft over te steken om midden in het dorpscentrum te staan tussen de winkels en voorzieningen. Een ideale combinatie van vrijheid en gemak.

Oorspronkelijk gebouwd in 1920, is de woning in de afgelopen jaren ingrijpend verbouwd, uitgebouwd en verduurzaamd. Zowel op de begane grond als op de eerste verdieping is aan de achterzijde fors uitgebreid, waardoor een verrassend ruime en eigentijdse woning is ontstaan. Dankzij meerdere nieuwe buitenmuren, geïsoleerde gevels en dak, en moderne afwerkingen heeft het geheel een frisse, comfortabele uitstraling die past bij de woonwensen van nu.

Indeling
Begane grond
Via de entree met hal, meterkast en trapopgang bereikt u de royale leefruimtes. De woonkamer biedt volop ruimte voor een gezellige zithoek en eethoek. De woonkeuken is een lichte, prettige ruimte met openslaande deuren naar de achtertuin, waardoor binnen en buiten naadloos in elkaar overlopen. De U-vormige keukenopstelling is voorzien van diverse inbouwapparatuur, waaronder een combi-oven, inductiekookplaat en vaatwasser (2025).

Verder vindt u op de begane grond een praktische bijkeuken met witgoedaansluitingen en een achterdeur, een separate toiletruimte en een multifunctionele kamer die uitstekend geschikt is als kantoor, werk-, game- of speelkamer.

Een absolute blikvanger is de in 2024 volledig vernieuwde badkamer op de begane grond. Deze moderne en luxe uitgevoerde ruimte beschikt over een ligbad, ruime inloopdouche, dubbele wastafel met meubel, verwarmde spiegel en elektrische vloerverwarming.

Eerste verdieping
Dankzij de uitbouw is ook de eerste verdieping aanzienlijk vergroot. Hier bevinden zich maar liefst vier ruime slaapkamers, stuk voor stuk prettig van formaat. Daarnaast is er een separate toiletruimte en een praktische wasruimte. De aansluitingen voor water en afvoer zijn hier al aanwezig, waardoor het realiseren van een tweede badkamer eenvoudig te realiseren is.

Tweede verdieping
Via een vlizotrap bereikt u de bergzolder, ideaal voor het opbergen van seizoensspullen en extra opslag.

Tuin en bijgebouwen
Het royale perceel van 865 m² biedt een uitzonderlijk diepe achtertuin met volop privacy. De tuin is recent grotendeels vernieuwd, met nieuwe schuttingen en een vergroot terras waar u heerlijk kunt genieten van het buitenleven. Kinderen hebben hier alle ruimte om te spelen en de aanwezige fruitbomen geven de tuin een sfeervolle, landelijke uitstraling.

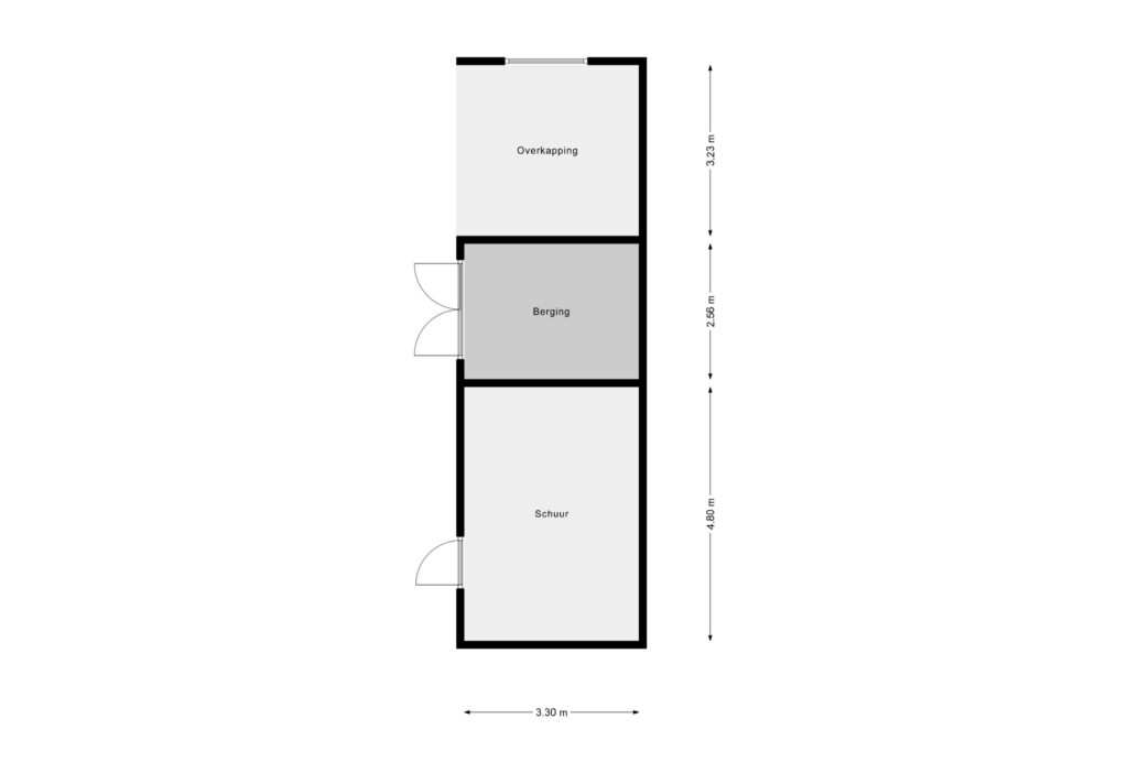
In de tuin bevinden zich een bestaande schuur én een recent gebouwde houten schuur met aangebouwde overkapping, perfect voor opslag, hobby’s of het creëren van een fijne loungeplek voor in de avonduren.

Bijzonderheden
- Vrijstaande woning op 865 m² eigen grond
- Uitgebouwd op begane grond en eerste verdieping
- Sinds 2014 grondig verbouwd, gemoderniseerd en geïsoleerd
- Moderne badkamer (2024) op de begane grond
- Mogelijkheid tot tweede badkamer op de eerste verdieping
- Keuken geplaatst in 2015, voorzien van diverse inbouwapparatuur
- Vaatwasser vernieuwd in 2025
- Cv-ketel Remeha Avanta (2014)
- Gevelbekleding voorzijde en dakkapel uitgevoerd in onderhoudsarm Keralit
- Zinken goten en boeidelen vernieuwd in zomer 2025
- Recent vernieuwde achtertuin met groter terras en nieuwe schuttingen
- Nieuwe houten schuur met aangebouwde overkapping

Toon volledige omschrijving

Kenmerken

Overdracht
Vraagprijs
€ 600.000,-
Vraagprijs per m²
€ 3.896,-
Aangeboden sinds
27 februari 2026
Status
Beschikbaar
Aanvaarding
In overleg
Bouw
Soort object
Woonhuis
Soort woning
Eengezinswoning
Type woning
Vrijstaande woning
Bouwjaar
1920
Bouwvorm
Bestaande bouw
Soort dak
Zadeldak
Ligging
Aan rustige weg, In centrum
Oppervlakte en inhoud
Woonoppervlakte
154 m2
Perceel oppervlakte
865 m2
Inhoud
540 m3
Indeling
Aantal kamers
7
Aantal badkamers
1
Aantal slaapkamers
4
Energie
Energielabel
B
Isolatie
Dakisolatie, Muurisolatie, Grotendeels dubbelglas
Verwarming
CV ketel
Warmwater
CV ketel
C.V.-Ketel
Remeha Avanta HR (Gas, Eigendom)
Bouwjaar C.V.-Ketel
2014
Combiketel
Ja
Buitenruimte
Tuin
Achtertuin, Voortuin, Zijtuin
Hoofdtuin
Achtertuin
Hoofdtuin oppervlakte
670 m2
Positie
Noord
Achterom
Ja
Kwaliteit
Normaal
Bergruimte
Soort
Vrijstaand hout
Voorzieningen
Voorzien van elektra
Parkeergelegenheid
Garage
Geen garage
Voorzieningen
Voorzien van elektra
Parkeer faciliteiten
Op eigen terrein
Overig
Permanente bewoning
Ja
Onderhoud binnen
Goed
Onderhoud buiten
Goed
Huidig gebruik
Woonruimte
Huidige bestemming
Woonruimte
Bekijk alle specificaties

Plattegronden

Virtuele tour

Wat is er in de buurt?

    Weten wat uw woning waard is?