Breezand – Zandvaart 162

Verkocht

Zandvaart 162

1764 NX, Breezand

126 m2
440 m2
4
€ 419.000,- k.k.
Energielabel:
C

Omschrijving

Welkom bij deze prachtige halfvrijstaande woning op een prachtige locatie gelegen in Breezand. Deze statige woning uit 1900 is perfect onderhouden en biedt een woonoppervlakte van maar liefst 126 m². De woning is gelegen op een royaal perceel van totaal 440 m² en heeft een prachtig aangelegde achtertuin op het zuidoosten.

Deze fraaie woning beschikt over zes kamers, waarvan vier prima slaapkamers. De woning is gebouwd in het jaar 1900, maar heeft vanaf 1992 een flinke verbouwing ondergaan, waarbij in 2005 de grote achteruitbouw is gerealiseerd.

Breezand, gelegen in het hart van de Noordkop, staat bekend om zijn vredige en rustige woonomgeving tussen met name de bollenvelden. Het dorp biedt alle noodzakelijke voorzieningen zoals winkels, scholen en ook openbaar vervoer is binnen handbereik.

Begane grond
Bij binnenkomst in de hal, treft u de meterkast en de keurig betegelde toiletruimte aan. Vanuit deze hal komt u in een ruime woonkamer aan de voorzijde van de woning met open trap naar boven en de open keuken. Via de keuken is de eetkamer/achteruitbouw te bereiken. Deze (in 2005 aangebouwde) ruimte is heerlijk licht door de grote raampartijen, wat bijdraagt aan de algehele gezellige sfeer van de woning en geeft direct toegang tot de heerlijk ruime achtertuin op het zuidoosten. De gehele begane grondvloer is voorzien van vloerverwarming.

Eerste verdieping
Op de eerste verdieping bevinden zich vier ruime slaapkamers en een goed uitgeruste badkamer met toilet, douche en wastafel.

Tweede verdieping: De bergzolder kan dienen als extra opslagruimte of kan naar wens worden ingericht en is middels een vlizotrap te bereiken.

Tuin
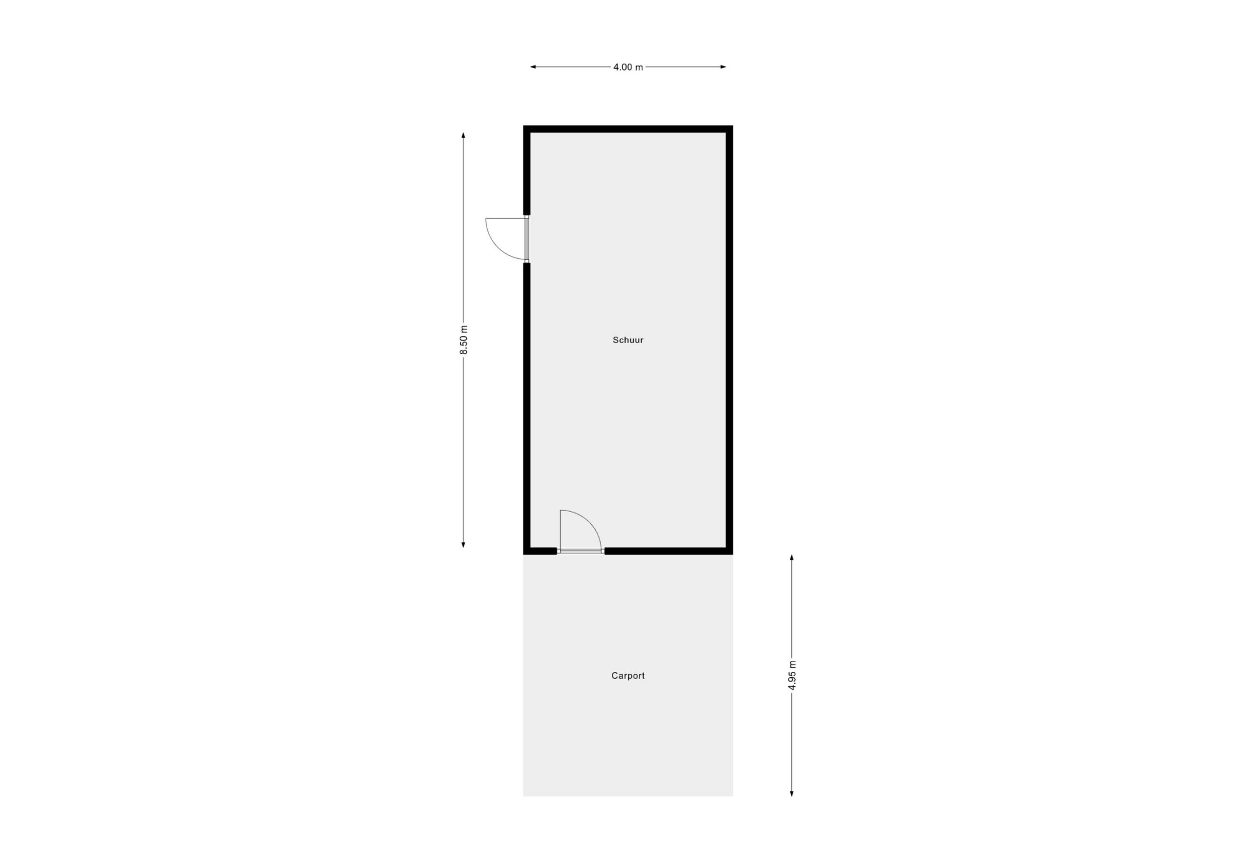
De woning beschikt over een prachtige achtertuin, ideaal om te genieten van de zon. Tevens is in de achtertuin een houten schuur aanwezig van ca. 34 m² met een mooie carport ervoor.

Bijzonderheden & extra informatie
- Royale achtertuin op het zuidoosten
- Gebouwd in 1900, in 1992 voorzien van nieuwe betonvloer en geïsoleerd dak.
- in 2005 achteruitbouw gerealiseerd van 23 m²
- 4 slaapkamers
- Woonoppervlakte: ca. 126 m²
- c.v.-ketel een Nefit HRC-30 uit 2018
- Begane grondvloer voorzien van vloerverwarming

Grijp uw kans om deze fantastische woning te bezichtigen. Laat u charmeren door de combinatie van ruimte, licht en locatie. Neem snel contact op met de makelaar voor het plannen van een bezichtiging!

Toon volledige omschrijving

Kenmerken

Overdracht
Vraagprijs
€ 419.000,-
Vraagprijs per m²
€ 3.325,-
Aangeboden sinds
9 oktober 2025
Status
Verkocht
Aanvaarding
In overleg
Bouw
Soort object
Woonhuis
Soort woning
Eengezinswoning
Type woning
Twee onder één kapwoning
Bouwjaar
1900
Bouwvorm
Bestaande bouw
Soort dak
Samengesteld dak
Ligging
In woonwijk
Oppervlakte en inhoud
Woonoppervlakte
126 m2
Perceel oppervlakte
440 m2
Inhoud
425 m3
Indeling
Aantal kamers
6
Aantal badkamers
1
Aantal slaapkamers
4
Voorzieningen
TV kabel, Dakraam
Energie
Energielabel
C
Isolatie
Dakisolatie, Muurisolatie, Vloerisolatie, Dubbelglas
Verwarming
CV ketel
Warmwater
CV ketel
C.V.-Ketel
Nefit HRC-30 (Gas, Eigendom)
Bouwjaar C.V.-Ketel
2018
Combiketel
Ja
Buitenruimte
Tuin
Achtertuin, Voortuin
Hoofdtuin
Achtertuin
Hoofdtuin oppervlakte
264 m2
Positie
Zuidoost
Achterom
Ja
Kwaliteit
Fraai aangelegd
Bergruimte
Soort
Vrijstaand hout
Voorzieningen
Voorzien van elektra
Isolatievormen
Geen isolatie
Parkeergelegenheid
Garage
Carport, Geen garage
Voorzieningen
Voorzien van elektra
Parkeer faciliteiten
Op eigen terrein
Parkeeroppervlakte
20 m2
Parkeercapaciteit
2
Overig
Permanente bewoning
Ja
Onderhoud binnen
Goed
Onderhoud buiten
Goed
Huidig gebruik
Woonruimte
Huidige bestemming
Woonruimte
Bekijk alle specificaties

Plattegronden

Virtuele tour

Wat is er in de buurt?

    Weten wat uw woning waard is?