Callantsoog – Helmweg 6

Verkocht onder voorbehoud

Helmweg 6

1759 NE, Callantsoog

122 m2
475 m2
3
€ 445.000,- k.k.
Energielabel:
C

Omschrijving

Op een unieke locatie vlak bij zee – Helmweg 6, Groote Keeten

Aan de rustige Helmweg, in het charmante kustdorp Groote Keeten en op slechts 800 meter lopen van strand en duinen, vindt u deze sfeervolle levensloopbestendige vrijstaande woning. Gelegen op een royaal perceel van 475 m², met een grote berging, is dit een ideale plek voor wie comfortabel en toekomstbestendig wil wonen aan de kust. De woning is grotendeels gerenoveerd, maar behoeft ook nog wel wat onderhoud. Zo zijn de gevels voorzien van onderhoudsarme kunststof rabatdelen en kozijnen. De begane grond is volledig gemoderniseerd: de badkamer is vernieuwd, de vloeren zijn afgewerkt met plavuizen voorzien van comfortabele vloerverwarming, en de wanden zijn gestuukt. Hier geniet u van rust, ruimte en het buitenleven, met alle voorzieningen gelijkvloers en het strand op loopafstand.

Bent u op zoek naar rust, ruimte en de zee om de hoek? Dan is dit uw kans! Neem gerust contact met ons op voor een bezichtiging.

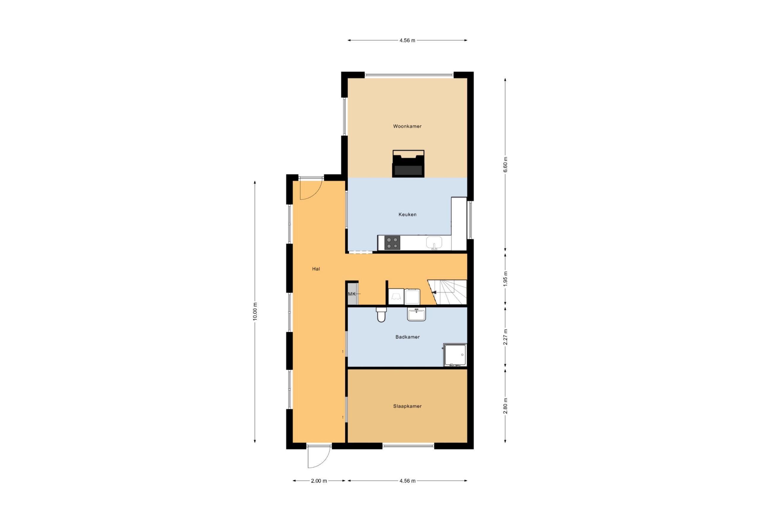
BEGANE GROND
Via de voordeur aan de voorzijde betreedt u een ruime hal met toegang tot de woonkamer, badkamer, slaapkamer, de trap naar de eerste verdieping en de achtertuin. De gehele begane grond is afgewerkt met een moderne plavuizen vloer met vloerverwarming. De lichte woonkamer ligt aan de voorzijde van de woning en beschikt over een gezellige houtkachel. De open keuken is opgesteld in een hoekopstelling en voorzien van een afzuigkap, gaskookplaat, oven en vaatwasser. Vanuit de keuken is een extra ruimte bereikbaar met de witgoedaansluitingen, meterkast en de trap naar de verdieping. De moderne badkamer is betegeld en uitgerust met een douche, wastafel en toilet.
De slaapkamer aan de achterzijde is netjes afgewerkt en goed van formaat.

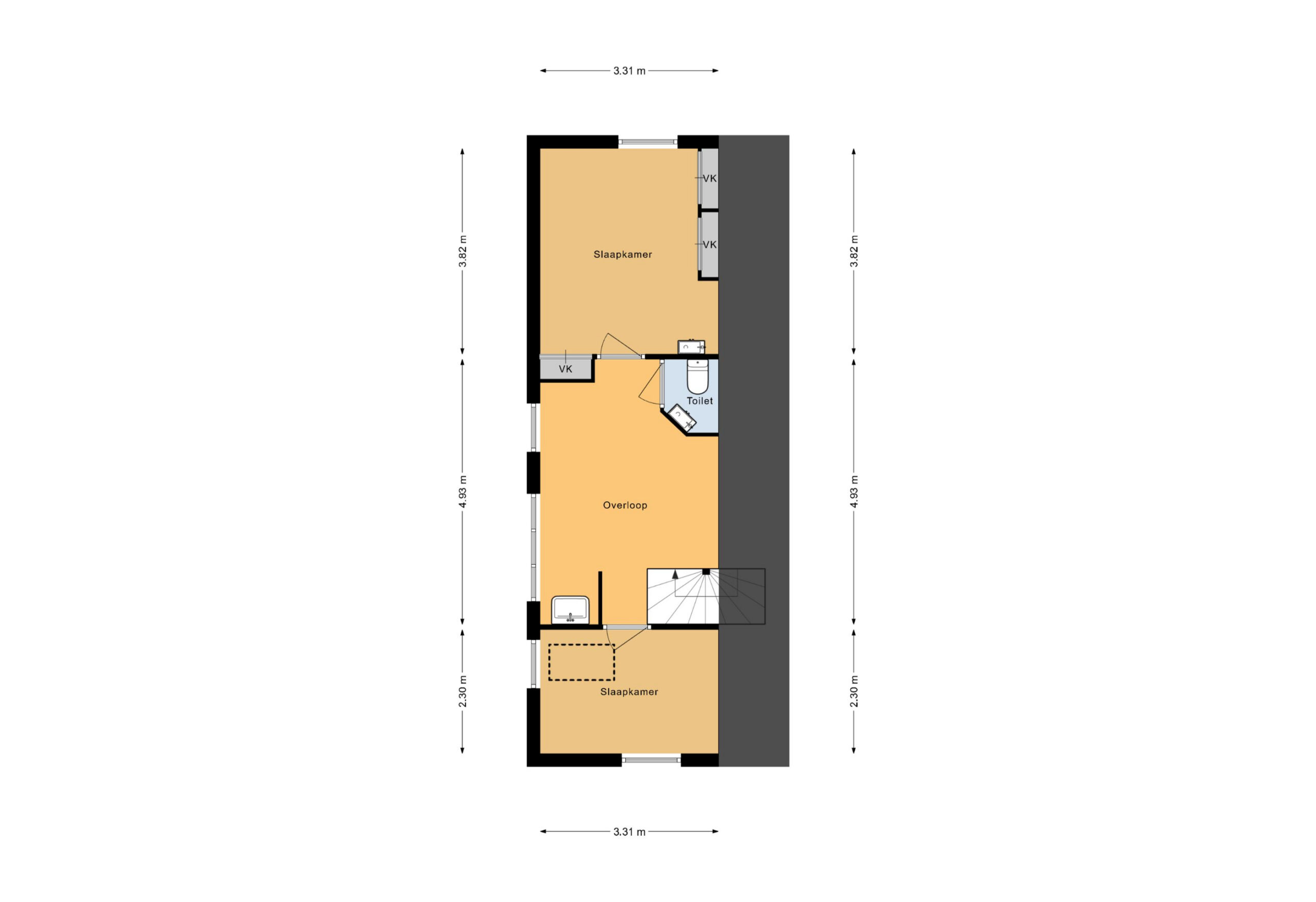
EERSTE VERDIEPING
De verdieping is bereikbaar via een vaste trap. Op de overloop bevinden zich de deuren naar twee slaapkamers, een toilet en wastafelopstelling. De verdieping behoeft nog enige afwerking, dus u kunt hier nog naar eigen smaak aan de slag met indelen van wellicht grotere slaapkamers of een extra badkamer. Tevens is daar de toegang tot een vliering

TUIN
De woning beschikt over een rondom gelegen tuin met veel privacy. In de tuin bevindt zich een ruime berging met vliering, die wat onderhoud nodig heeft. De berging is voorzien van een eigen toilet.

BIJZONDERHEDEN
- Levensloopbestendig
- Nabij het strand
- 3 slaapkamers
- Vloerverwarming op de begane grond
- Houtkachel

Toon volledige omschrijving

Kenmerken

Overdracht
Vraagprijs
€ 445.000,-
Vraagprijs per m²
€ 3.648,-
Aangeboden sinds
13 december 2025
Status
Verkocht onder voorbehoud
Aanvaarding
In overleg
Bouw
Soort object
Woonhuis
Soort woning
Eengezinswoning
Type woning
Vrijstaande woning
Bouwjaar
1925
Bouwvorm
Bestaande bouw
Soort dak
Zadeldak
Ligging
Aan rustige weg
Oppervlakte en inhoud
Woonoppervlakte
122 m2
Perceel oppervlakte
475 m2
Inhoud
390 m3
Indeling
Aantal kamers
5
Aantal badkamers
1
Aantal slaapkamers
3
Voorzieningen
Mechanische ventilatie
Energie
Energielabel
C
Isolatie
Dubbelglas
Verwarming
CV ketel
Warmwater
CV ketel
C.V.-Ketel
Nefit (Gas, Eigendom)
Bouwjaar C.V.-Ketel
2008
Combiketel
Ja
Buitenruimte
Tuin
Achtertuin, Voortuin
Achterom
Nee
Bergruimte
Soort
Vrijstaand steen
Parkeergelegenheid
Garage
Geen garage
Parkeer faciliteiten
Openbaar parkeren, Op eigen terrein
Overig
Permanente bewoning
Ja
Onderhoud binnen
Redelijk tot goed
Onderhoud buiten
Redelijk tot goed
Huidig gebruik
Woonruimte
Huidige bestemming
Woonruimte
Bekijk alle specificaties

Plattegronden

Virtuele tour

Wat is er in de buurt?

    Weten wat uw woning waard is?