Den Oever – Hoge Poel 12

Verkocht

Hoge Poel 12

1779 EL, Den Oever

120 m2
152 m2
3
€ 349.000,- k.k.
Energielabel:
C

Omschrijving

Instapklare hoekwoning

Welkom aan Hoge Poel 12: een ruime, zonnige en instapklare hoekwoning, gelegen in het sfeervolle Den Oever. De woning is recent op meerdere punten gemoderniseerd en verduurzaamd, waardoor je hier direct zorgeloos kunt wonen. De woning beschikt over een stijlvolle, moderne keuken en een vernieuwde badkamer, volledig passend bij de huidige woonwensen. Dankzij de gunstige ligging van de achtertuin op het zuidwesten geniet je het hele jaar door van een zonnige buitenruimte, perfect voor ontspannen, tuinieren of gezellige momenten met familie en vrienden.

Ook benieuwd naar wat er in deze woning allemaal mogelijk is? Maak dan snel een afspraak met onze makelaar voor een bezichtiging.

De woning ligt aan de rand van Den Oever, ideaal voor forenzen: binnen enkele minuten bereik je de A7 én de Afsluitdijk, waardoor zowel Noord-Holland, Friesland als de Randstad uitstekend bereikbaar zijn. Op loopafstand vind je een grote supermarkt en basisschool. Voor voortgezet onderwijs zijn Den Helder, Schagen, Wieringerwerf of Hoorn goed bereikbaar per bus; de bushalte ligt op slechts enkele minuten lopen.

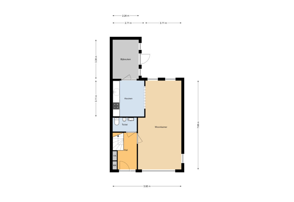
BEGANE GROND
Entree aan de voorzijde in een hal met meterkast, vergrootte toiletruimte en trapopgang. De moderne en volledig betegelde toiletruimte is voorzien van een wandcloset, urinoir en fonteintje. De lichte woonkamer beschikt over ramen aan drie zijden en een moderne plavuizenvloer met vloerverwarming. De rechte keukenopstelling is uitgerust met o.a. een inductiekookplaat, afzuigkap, combi-oven, vaatwasser en koelkast. Aangrenzend bevindt zich de bijkeuken met kunststof kozijnen, wasmachine-opstelling en extra opbergruimte.

VERDIEPING
De eerste verdieping telt twee royale slaapkamers (voorheen drie; eenvoudig terug te brengen) en een volledig betegelde, moderne badkamer met wandcloset, inloopdouche, designradiator en dubbel wastafelmeubel.

ZOLDER
Op de zolder bevinden zich de voorzolder met Cv-ketel 2017 en een ruime derde slaapkamer met wastafel en groot dakraam.

TUIN
De zonnige tuin op het zuidwesten is onderhoudsvriendelijk aangelegd met bestrating, beplanting en een vrijstaand stenen schuurtje. De tuin is bereikbaar via een achterom.

GARAGE
Het is mogelijk om tegen een meerprijs de achtergelegen garage bij te kopen.

KENMERKEN
- Moderne keuken 2025 sanitair 2018
- Recent gestukt en gedeeltelijk voorzien van nieuwe vloeren
- Zonnige achtertuin op het zuidwesten
- Ruime, volledig gemoderniseerde hoekwoning op centrale locatie

Toon volledige omschrijving

Kenmerken

Overdracht
Vraagprijs
€ 349.000,-
Vraagprijs per m²
€ 2.908,-
Aangeboden sinds
19 november 2025
Status
Verkocht
Aanvaarding
In overleg
Bouw
Soort object
Woonhuis
Soort woning
Eengezinswoning
Type woning
Hoekwoning
Bouwjaar
1974
Bouwvorm
Bestaande bouw
Soort dak
Zadeldak
Ligging
In woonwijk
Oppervlakte en inhoud
Woonoppervlakte
120 m2
Perceel oppervlakte
152 m2
Inhoud
410 m3
Indeling
Aantal kamers
4
Aantal badkamers
1
Aantal slaapkamers
3
Voorzieningen
Mechanische ventilatie, TV kabel, Dakraam
Energie
Energielabel
C
Isolatie
Dakisolatie, Muurisolatie, Vloerisolatie, Dubbelglas
Verwarming
CV ketel
Warmwater
CV ketel
C.V.-Ketel
Remeha (Gas, Eigendom)
Bouwjaar C.V.-Ketel
2017
Combiketel
Ja
Buitenruimte
Tuin
Achtertuin, Voortuin, Zijtuin
Achterom
Nee
Kwaliteit
Normaal
Bergruimte
Soort
Vrijstaand steen
Parkeergelegenheid
Garage
Vrijstaand steen
Parkeer faciliteiten
Openbaar parkeren
Overig
Permanente bewoning
Ja
Onderhoud binnen
Goed
Onderhoud buiten
Goed
Huidig gebruik
Woonruimte
Huidige bestemming
Woonruimte
Bekijk alle specificaties

Plattegronden

Virtuele tour

Wat is er in de buurt?

    Weten wat uw woning waard is?