Middenmeer – Breestraat 1c

Verkocht

Breestraat 1c

1775 BJ, Middenmeer

52 m2
1
€ 245.000,- k.k.
Energielabel:
A

Omschrijving

Welkom bij de Breestraat 1c in Middenmeer, een levendige plek in de Kop van Noord-Holland met een unieke sfeer en bijzondere kenmerken. Dit moderne 2 kamer-appartement op de begane grond heeft een bouwjaar van 2009 en is uitgerust met alle gemakken voor een comfortabel leven in dit fraaie dorp. Met voldoende openbaar parkeergelegenheid in de buurt en de winkels om de hoek is dit een ideale locatie. Het appartement is voorzien van een moderne keuken en modern sanitair. Daarnaast wordt het verwarmd door een eigen c.v.-ketel met vloerverwarming door het hele appartement wat zorgt voor een aangenaam binnenklimaat.

De Breestraat ligt in het centrum van Middenmeer, maar de locatie zelf is rustig te noemen. De ligging van de woning is gunstig ten opzichte van diverse uitvalswegen richting Alkmaar/Amsterdam en de Afsluitdijk, waardoor je binnen enkele minuten op de snelweg bent.

Het appartement heeft een woonoppervlak van 52 m² en is volledig geïsoleerd conform de eisen van 2009.
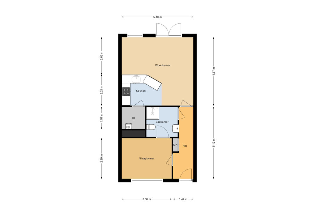
Op de begane grond vindt je een lichte woonkamer met openslaande deuren naar het terras die op het westen ligt. De luxe keuken heeft een kunststof aanrechtblad, combimagnetron, 4-pits gaskookplaat, RVS afzuigkap, koelkast met vriesvak, vaatwasser en voldoende kastruimte. Aansluitend aan de keuken treft u de bijkeuken/technische ruimte met een wasmachine- en wasdrogeraansluiting, de c.v.-opstelling en de WTW unit. De hoofdentree is aan de oostzijde met de meterkast en toegang tot de slaapkamer. De badkamer is voorzien van een toilet, wastafelmeubel en douche. Verder treft u op de begane grond de centrale hal van het complex met de postbussen en is er toegang tot een gang met daar de (fietsen)berging.

Het appartement heeft een fijn terras van ca. 10 m², gesitueerd op het westen.

Rondom de woning zijn er voldoende openbare parkeerplaatsen beschikbaar.

Bijzonderheden:
- door het bouwjaar van de woning (2009) is het goed geïsoleerd.
- een centrale ligging in Middenmeer en nabij uitvalswegen
- volledig voorzien van vloerverwarming
- moderne open keuken en modern sanitair.

Ben je geïnteresseerd in dit appartement? Neem dan snel contact op met ons om een bezichtiging in te plannen.

Toon volledige omschrijving

Kenmerken

Overdracht
Vraagprijs
€ 245.000,-
Aangeboden sinds
31 oktober 2025
Status
Verkocht
Aanvaarding
In overleg
Bouw
Soort object
Appartement
Soort appartement
Benedenwoning
Bouwjaar
2009
Bouwvorm
Bestaande bouw
Soort dak
Samengesteld dak
Ligging
In centrum
Oppervlakte en inhoud
Woonoppervlakte
52 m2
Inhoud
187 m3
Indeling
Aantal kamers
2
Aantal badkamers
1
Aantal slaapkamers
1
Aantal woonlagen
3
Voorzieningen
Mechanische ventilatie
Energie
Energielabel
A
Isolatie
Dakisolatie, Muurisolatie, Vloerisolatie
Verwarming
CV ketel, Vloerverwarming geheel, Warmte terugwininstallatie
Warmwater
CV ketel
C.V.-Ketel
Intergas HR (Gas, Eigendom)
Bouwjaar C.V.-Ketel
2010
Combiketel
Ja
Buitenruimte
Tuin
Plaats
Hoofdtuin
Plaats
Hoofdtuin oppervlakte
10 m2
Positie
West
Achterom
Ja
Kwaliteit
Normaal
Bergruimte
Soort
Box
Voorzieningen
Voorzien van elektra
Isolatievormen
Volledig geïsoleerd
Parkeergelegenheid
Garage
Geen garage
Voorzieningen
Voorzien van elektra
Parkeer faciliteiten
Openbaar parkeren
Overig
Permanente bewoning
Ja
Onderhoud binnen
Goed
Onderhoud buiten
Goed
Huidig gebruik
Woonruimte
Huidige bestemming
Woonruimte
Bekijk alle specificaties

Plattegronden

Virtuele tour

Wat is er in de buurt?

    Weten wat uw woning waard is?