Hoekwoningen 19

Verkocht

Hoekwoningen 19

1766, Wieringerwaard

380 m2
380
3
€ 460.000,-
Energielabel:
A+++

Omschrijving

Aan de lint van Wieringerwaard verrijst een volledig nieuwe, kindvriendelijke woonwijk met maar liefst 19 woningen.

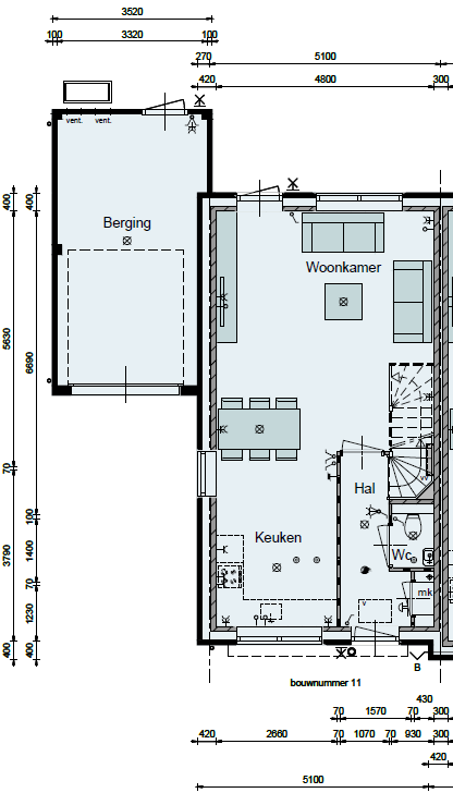
Deze hoekwoning van maar liefst 115 m² krijgt 3 slaapkamers en een ruime zolder waar ook nog een slaapkamer gerealiseerd kan worden en heeft de tuin op het zuiden dus nagenoeg de dag de zon in de tuin.

De woonkamer zal standaard tuingericht zijn en de ruime straatgerichte keuken leent zich bij uitstek voor een luxe keuken. Uiteraard is alles nog te personaliseren.

De woningen worden conform de laatste eisen en normen gebouwd. Dus ook zeer energiezuinig. Met een volledig elektrische warmtepomp en enkele zonnepanelen zit u er straks lekker comfortabel en warmpjes bij. Meer zonnepanelen behoort ook nog tot de opties en ook kunt u de woning nog op diverse andere punten helemaal personaliseren. De badkamer en toilet behoren bij de basisafwerking en zijn volledig werkend en waterdicht bij oplevering. Uiteraard kunt u hier vooraf ook al heel veel personalisatie wensen in kwijt.

Ook de tuin is nog naar eigen inzicht in te richten, zowel aan de voor, zij- als achterkant, De aangebouwde berging is ruim genoeg voor alle spullen zoals fietsen, gereedschappen en andere tuinspullen. In de voortuin zal ruimte zijn voor 2 parkeerplaatsen op eigen terrein.

De wijk kenmerkt zich verder door een groot groen veld in het midden van het hofje, waar door de gemeente een kinderspeelplaats zal worden ingericht.

Wieringerwaard is een dorp waar je rustig thuis komt en waar de kinderen rustig op straat kunnen spelen. Basisschool, kinderopvang en sportverenigingen zijn op loopafstand. Met diverse grotere plaatsen op korte afstand heeft u toch alles binnen handbereik, maar zonder de drukte.

Toon volledige omschrijving

Kenmerken

Overdracht
Vraagprijs
€ 460.000,-
Aangeboden sinds
2 oktober 2025
Status
Verkocht
Aanvaarding
In overleg
Bouwvorm
Soort object
Woonhuis
Soort woning
Eengezinswoning
Type woning
Hoekwoning
Bouwvorm
Nieuwbouw
Liggingen
In woonwijk
Indeling
Woonoppervlakte
115 m2
Perceeloppervlakte
380 m2
Inhoud
380 m3
Aantal kamers
4
Aantal slaapkamers
3
Aantal badkamers
1
Aantal woonlagen
3
Energie
Energieklasse
A+++
Verwarming
Vloerverwarming geheel, Warmtepomp
Warmwater
Elektrische boiler eigendom
Isolatie
Volledig geïsoleerd
Combiketel
Nee
Buitenruimte
Tuin
Achtertuin, Voortuin, Zijtuin
Achterom
Nee
Bergruimte
Schuur / Berging
Aangebouwd steen
Voorzieningen
Voorzien van elektra
Totaal aantal
1
Parkeergelegenheid
Parkeerfaciliteiten
Op eigen terrein
Garage
Geen garage
Dak
Soort dak
Zadeldak
Overig
Permanente bewoning
Ja
Onderhoud binnen
Uitstekend
Onderhoud buiten
Uitstekend
Bekijk alle specificaties

Weten wat uw woning waard is?