1766, Wieringerwaard
Aan de lint van Wieringerwaard verrijst een volledig nieuwe, kindvriendelijke woonwijk met maar liefst 19 woningen.
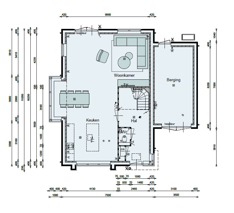
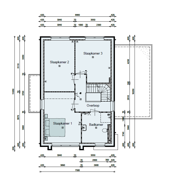
Deze vrijstaande woning van maar liefst 174 m² krijgt 3 slaapkamers en een ruime zolder waar ook nog een slaapkamer gerealiseerd kan worden en heeft de tuin op het westen dus de hele middag en na-middag de zon in de gehele tuin.
De woonkamer zal standaard straatgericht zijn en de ruime keuken leent zich bij uitstek voor een grote keuken met kookeiland. Uiteraard is alles nog te personaliseren en ook zijn deze woonkamer en keuken nog om te draaien. Deze woning kenmerkt zich verder door de standaard erker van maar liefst 4 meter breed die standaard geplaatst wordt voor een extra ruime en lichte woonkamer. Aan de achterzijde komen standaard openslaande deuren.
De externe volledig geïsoleerde berging van ca. 19m² is groot genoeg voor de opslag van gereedschappen, fietsen, tuinmeubelen etcetera. Ook is het mogelijk om een binnendoor te creëren en hier de wasmachine te plaatsen. Vraag naar de mogelijkheden.
De woningen worden conform de laatste eisen en normen gebouwd. Dus ook zeer energiezuinig. Met een volledig elektrische warmtepomp en enkele zonnepanelen zit u er straks lekker comfortabel en warmpjes bij. Meer zonnepanelen behoort ook nog tot de opties en ook kunt u de woning nog op diverse andere punten helemaal personaliseren. De badkamer en toilet behoren bij de basisafwerking en zijn volledig werkend en waterdicht bij oplevering. Uiteraard kunt u hier vooraf ook al heel veel personalisatie wensen in kwijt.
Ook de tuin is nog naar eigen inzicht in te richten, zowel voor als achter, De berging is ruim genoeg voor alle spullen zoals fietsen, gereedschappen en andere tuinspullen. In de voortuin zal ruimte zijn voor 2 parkeerplaatsen op eigen terrein.
De wijk kenmerkt zich verder door een groot groen veld in het midden van het hofje, waar door de gemeente een kinderspeelplaats zal worden ingericht.
Wieringerwaard is een dorp waar je rustig thuis komt en waar de kinderen rustig op straat kunnen spelen. Basisschool, kinderopvang en sportverenigingen zijn op loopafstand. Met diverse grotere plaatsen op korte afstand heeft u toch alles binnen handbereik, maar zonder de drukte.