Vrijstaande woning 10

Onder optie

Vrijstaande woning 10

1766, Wieringerwaard

451 m2
451
3
€ 732.275,-
Energielabel:
A+++

Omschrijving

Aan de lint van Wieringerwaard verrijst een volledig nieuwe, kindvriendelijke woonwijk met maar liefst 19 woningen.

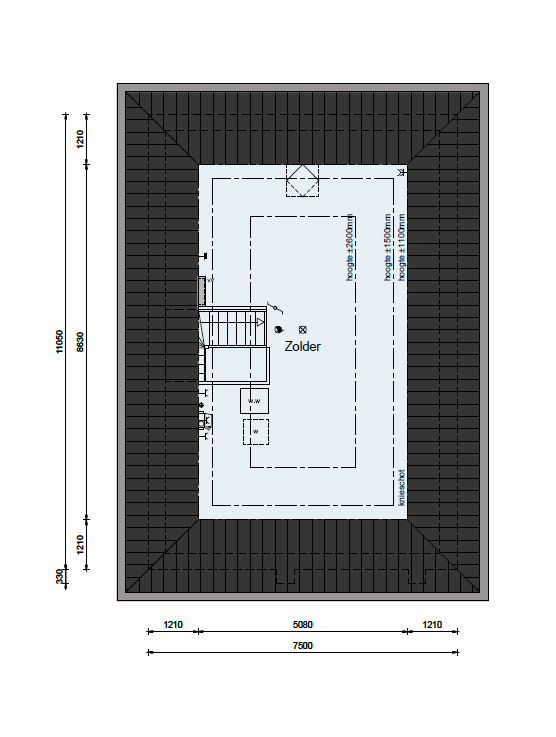
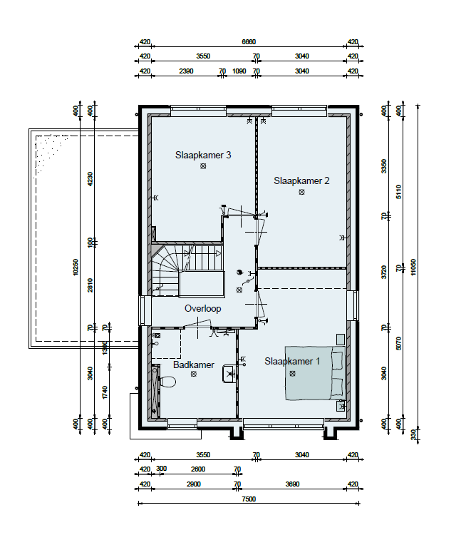
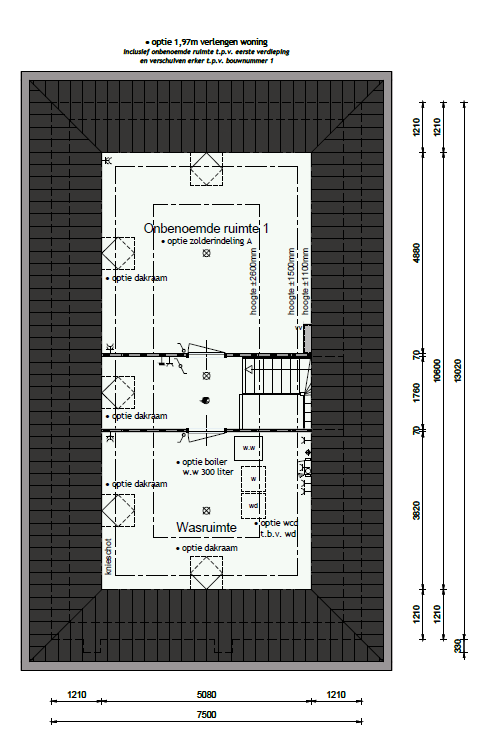
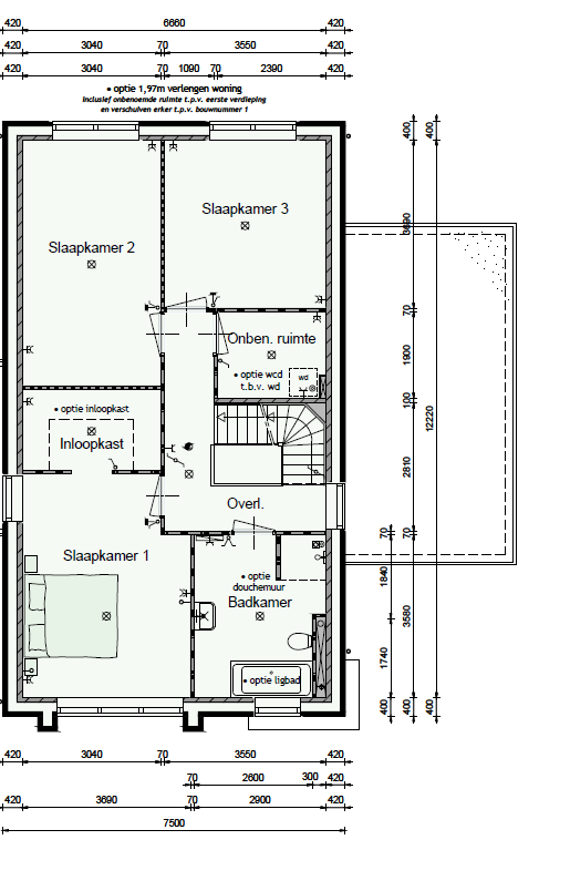
Deze vrijstaande woning wordt standaard XL uitgevoerd en krijgt een woonoppervlakte van maar liefst 205 m² met 3 ruime slaapkamers waarvan 1 met extra ruimte voor een inloopkast, een grote bergruimte op de verdieping en een extra ruime zolder waar ook nog eens met gemak 2 slaapkamers gerealiseerd kunnen worden. De tuin op het noorden heeft vooral in de ochtend en na-middag de zon in de gehele tuin en gedurende de dag lekker schaduw tegen tegen het huis aan. Achterin de tuin heeft u altijd zon.

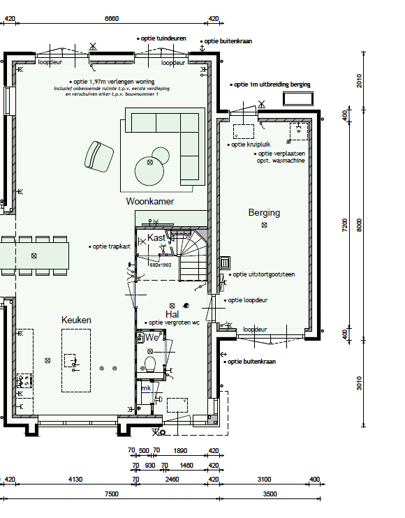
De woonkamer zal standaard straatgericht zijn en de ruime keuken leent zich bij uitstek voor een grote woonkeuken met kookeiland. Deze woning kenmerkt zich verder door de ligging aan water met uitzicht over de Kolksloot en aan het einde van het straatje met alleen maar (blijvend) groen naast de deur.

De woningen worden conform de laatste eisen en normen gebouwd. Dus ook zeer energiezuinig. Met een volledig elektrische warmtepomp en enkele zonnepanelen zit u er straks lekker comfortabel en warmpjes bij. Meer zonnepanelen behoort ook nog tot de opties en ook kunt u de woning nog op diverse andere punten helemaal personaliseren. De extra grote badkamer behoort bij de basisafwerking en is volledig werkend en waterdicht bij oplevering. Uiteraard kunt u hier ook nog heel veel personalisatie wensen in kwijt.

Ook de tuin is nog naar eigen inzicht in te richten, zowel voor als achter, De berging wordt standaard geisoleerd en voorzien van hardhouten deuren i.p.v. een kanteldeur en is ruim genoeg voor alle spullen zoals fietsen, gereedschappen en andere tuinspullen. In de voortuin zal ruimte zijn voor 2 parkeerplaatsen op eigen terrein.

De wijk kenmerkt zich verder door een groot groen veld in het midden van het hofje, waar door de gemeente een kinderspeelplaats zal worden ingericht.

Wieringerwaard is een dorp waar je rustig thuis komt en waar de kinderen rustig op straat kunnen spelen. Basisschool, kinderopvang en sportverenigingen zijn op loopafstand. Met diverse grotere plaatsen op korte afstand heeft u toch alles binnen handbereik, maar zonder de drukte.

Toon volledige omschrijving

Kenmerken

Overdracht
Vraagprijs
€ 732.275,-
Aangeboden sinds
2 oktober 2025
Status
Onder optie
Aanvaarding
In overleg
Bouwvorm
Soort object
Woonhuis
Soort woning
Eengezinswoning
Type woning
Vrijstaande woning
Bouwvorm
Nieuwbouw
Liggingen
In woonwijk
Indeling
Woonoppervlakte
205 m2
Perceeloppervlakte
451 m2
Inhoud
670 m3
Aantal kamers
4
Aantal slaapkamers
3
Aantal badkamers
1
Aantal woonlagen
3
Energie
Energieklasse
A+++
Verwarming
Vloerverwarming geheel, Warmtepomp
Warmwater
Elektrische boiler eigendom
Isolatie
Volledig geïsoleerd
Combiketel
Nee
Buitenruimte
Tuin
Tuin rondom
Hoofdtuin
Tuin rondom
Achterom
Ja
Bergruimte
Schuur / Berging
Aangebouwd steen
Voorzieningen
Voorzien van elektra
Totaal aantal
1
Parkeergelegenheid
Parkeerfaciliteiten
Op eigen terrein
Garage
Geen garage
Dak
Soort dak
Zadeldak
Overig
Permanente bewoning
Ja
Onderhoud binnen
Uitstekend
Onderhoud buiten
Uitstekend
Bekijk alle specificaties

Weten wat uw woning waard is?